top of page

Umbau
Büroräume
Zürich

Direktauftrag, Realisierung 2017 - 2019
als OLBH mit Johannes Leibundgut und Florian Hartmann
Umbau Büroräume Zürich: Sitzungszimmer
Umbau Büroräume Zürich: Ansicht Barmöbel
Umbau Büroräume Zürich: Filmstill aus Stanley Kubricks "The Shining" 1980
Umbau Büroräume Zürich: Querschnitt Sitzungszimmer
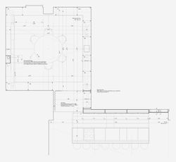
Umbau Büroräume Zürich: Grundriss
Umbau Büroräume Zürich: Querschnitte Barmöbel
Umbau Büroräume Zürich: Einbau Lüftung (Bild: Philip Knecht)
Umbau Büroräume Zürich: Sitzungszimmer (Bild: Philip Knecht)
Umbau Büroräume Zürich: Barbetrieb
Umbau Büroräume Zürich: Filmstill aus Stanley Kubricks "Dr. Strangelove" 1964
Umbau Büroräume Zürich: Sitzungszimmer
Umbau Büroräume Zürich: Barmöbel
Umbau Büroräume Zürich: Einteilung Aluminiumboden
Umbau Büroräume Zürich: Sitzungszimmer
Umbau Büroräume Zürich: Einbau Lüftung (Bild: Philip Knecht)
Umbau Büroräume Zürich: Barmöbel vor dem Umbau
Umbau Büroräume Zürich: Sitzungszimmer vor dem Umbau
Umbau Büroräume Zürich: Einbau Barmöbel
Umbau Büroräume Zürich: Einbau Lüftung (Bild: Philip Knecht)

© 2026 Atelier Piero Bühler

bottom of page